Покупки, продажи, услуги, магазины и продвижение в одной платформе
Каталог
Все города
о платформе Современная площадка объявлений с удобным приложением и большим ассортиментом

Детская одежда и обувь

Музыкальные инструменты

Быстрый старт Опубликуйте объявление за пару минут Создать объявление
Для бизнеса Подключите магазин и продвижение Смотреть тарифы
Навигация по платформе Закрыть
Популярные категории
Фильтры Закрыть
Не выбрано
Не выбрано
Не выбрано
Не выбрано
Не выбрано
Не выбрано
Не выбрано
Не выбрано
Не выбрано

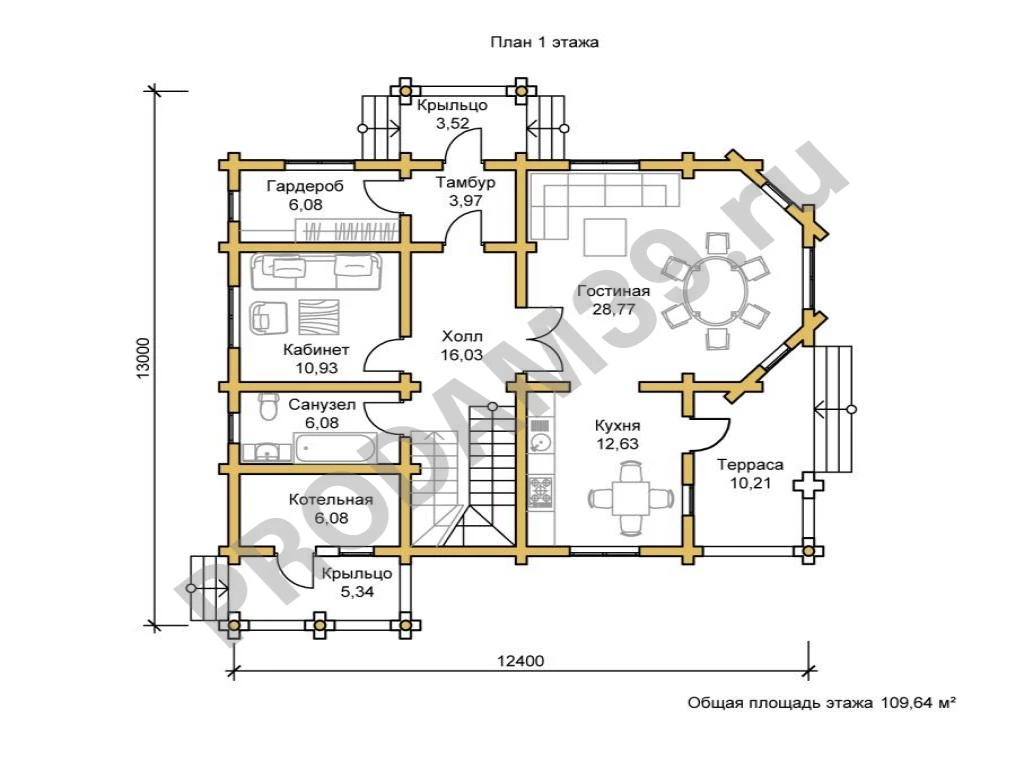
Строительство домов из бруса и бревна, 220 кв.м

7 месяцев назад 121 №01339474323

Местоположение

Калининград, Россия

Описание

Строительство домов из клееного бруса и оцилиндрованного бревна.

Дом «Норвегия»

ОБЩАЯ ПЛОЩАДЬ
220 м²
ПЛОЩАДЬ 1 ЭТАЖА
113 м²
ПЛОЩАДЬ 2 ЭТАЖА
107 м²
РАЗМЕРЫ
16 х 12,5 м
КОЛИЧЕСТВО КОМНАТ
5

Конструкторская документация:
Архитектурная часть.

Конструктивная часть.

Раскрой стенового материала.

Фундамент:
Ленточный мелкозаглубленный 300*600 (Бетон марки М300, арматура d=12 мм)

Дома 200-300 м² – отличный выбор для большой семьи
Планируя строительство домов из оцилиндрованного бревна или клееного бруса, любой человек в первую очередь задумывается о том, каких размеров будет здание. Ведь хочется, чтобы новое жилище было просторным и в то же время затраты не выходили за рамки запланированного бюджета. Именно поэтому проекты домов из сруба, площадью от 200 м² до 300 м² пользуются большой популярностью.

Большой дом открывает значительные возможности для его хозяев. Он позволяет обеспечить отдельное помещение для каждого члена семьи, обустроить просторную кухню и гостиную. При этом цена домов из сруба под ключ гораздо ниже в сравнении, с возведенными из других стройматериалов, в чем вы можете убедиться, посмотрев каталог компании «Стройсоюз». Причем по надежности и комфорту они им совершенно им не уступают, а в некоторых случаях даже превосходят.

Компания «Стройсоюз» осуществляет строительство домов в Иваново, как одноэтажных, так и двухэтажных, и предоставляет возможность каждому выбрать и, исходя из своих желаний и целей. Большинство наших клиентов предпочитает заказать именно двухэтажный брусовой дом, чтобы получить максимум жилой площади и сэкономить свободное пространство на участке.

Хотите заказать строительство дома из клееного бруса под ключ или уточнить какие-либо нюансы?
Позвоните!

Характеристики

Вид услуг: Дома и коттеджи «под ключ»
Отзывы 0

Отзывов пока нет 🥴

Цена не указана
СтройСоюз

Другие объявления продавца

Домой
Избранное
Добавить
Чат
Профиль